







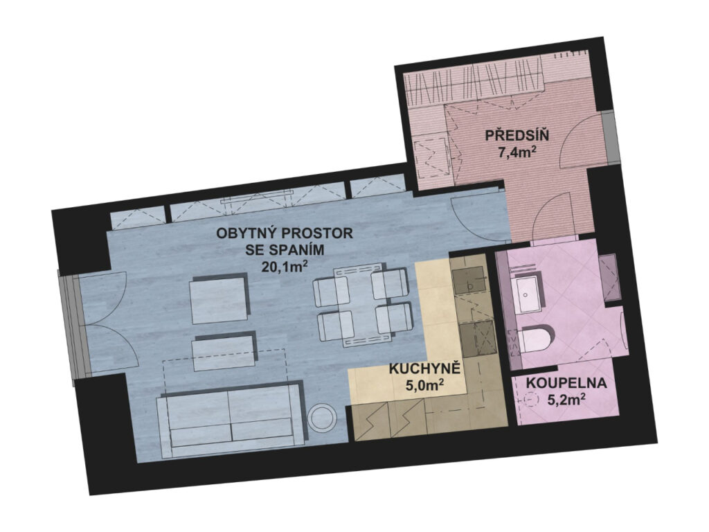
3.
1+KK
40.6 m²
0 m²
Ano
3 451 000 Kč
Žít v historickém domě v současném provedení? Ano, to je ono. Dát domu nový život a Vy buďte součástí. Nejedná se ovšem o žádnou částečnou rekonstrukci, ale o generální opravu s materiály, které jsou řádně vybírány odborníky, věnující se rekonstrukcím přes čtyřicet let. Domu tedy zůstaly obvodové stěny a jeho lukrativní umístění. O zbytek jsme se již postarali až do posledního detailu. Protože jsme si vědomi, že je nutno dbát na každý detail, nekončíme u výběru materiálů a kvality práce, ale hlavně nám jde i o design a architekturu, na které s námi spolupracuje brněnský architektonický ateliér Dagmar a Miroslava Velehradských – Architektonický ateliér Velehradský (velehradsky.cz)